Apartamento · Obra Nueva Alicante · Torrevieja · Playa de El Cura

60m2 1 1
  • 60m2
  • 1
  • 1

Características Clave

Habitaciones: 1
Baños: 1
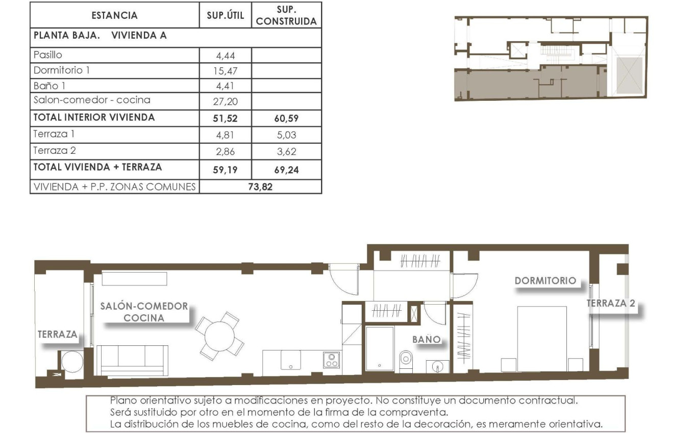
Construidos: 60m2
Calificación energética: B

Características

Gated
Near Schools
Air Conditioning: Pre-Installed
Near Commercial Center
Location: Coastal
Communal Pool
Near Bus Route
Near Childrens Parks
Elevator/Lift
Double Bedrooms: 1
Terrace: 7 Msq.
Useable Build Space: 51 Msq.
Beach: 150 Meters
Space

Descripción

Apartamentos de nueva construcción en el corazón de Torrevieja A tan solo 150 m de las piscinas naturales y el paseo marítimo y a 500 m de la Playa del Cura Ubicación privilegiada en el centro de Torrevieja Este nuevo edificio residencial goza de una ubicación inmejorable en el centro de Torrevieja, a solo 150 m del mar. Rodeado de tiendas, supermercados, restaurantes y servicios cotidianos, ofrece todo lo necesario a poca distancia. La zona también cuenta con parques, zonas de ocio y áreas verdes, creando un equilibrio perfecto entre las comodidades urbanas y los momentos de relax. Viviendas modernas de 1 y 2 dormitorios La promoción ofrece una selección de apartamentos de 1 y 2 dormitorios con 1 o 2 baños, incluyendo 2 áticos con solarium, barbacoa y piscina privada. Cada vivienda está diseñada con un estilo contemporáneo, con distribuciones diáfanas, terrazas y cocinas integradas de estilo americano. Los baños están totalmente equipados con muebles, mamparas de ducha y calefacción por suelo radiante. Iluminación incluida. Las cocinas incluyen electrodomésticos y cada apartamento cuenta con preinstalación para aire acondicionado por conductos. Zonas comunes La planta baja cuenta con una piscina comunitaria y una sauna. En la azotea hay un solarium comunitario para poder tomar el sol. Vivir en un entorno natural y costero único Torrevieja es conocida por su cálido clima mediterráneo, con una temperatura media anual de 20 ºC, lo que la convierte en un lugar perfecto para vivir durante todo el año. La ciudad es famosa por sus lagunas salinas naturales y el Parque Natural protegido de La Mata y Torrevieja, situado a solo 4 km de la urbanización. Sus lagos rosados y verdes, sus pintorescas rutas de senderismo y su rica biodiversidad ofrecen un estilo de vida saludable e inspirador. Distancias a puntos de interés clave Puerto deportivo de Torrevieja 1 km Parque Natural de La Mata 4 km Villamartin Golf 8 km Aeropuerto de Alicante 45 km Aeropuerto de Murcia 60 km Experimente el estilo de vida mediterráneo No pierda la oportunidad de adquirir una vivienda moderna en una de las ciudades costeras más deseadas de la Costa Blanca. Póngase en contacto con nosotros hoy mismo para concertar una visita y asegurarse su lugar en esta excepcional nueva promoción.

Localización

Financiación

Esta información que se proporciona aquí está sujeta a errores y no forma parte de ningún contrato. La oferta se puede cambiar o retirar sin previo aviso. Los precios no incluyen los costes de compra

Calcular hipoteca

Cambio de divisas

  • Libras: 204.845 GBP
  • Rublo Ruso: 204.845 RUB
  • Franco Suizo: 216.929 CHF
  • Yuan Chino: 1.891.351 CNY
  • Dolar: 277.230 USD
  • Corona Sueca: 2.538.705 SEK
  • Corona Noruega: 2.588.995 NOK
235.000€

Solicitar información

Responsable del tratamiento: BELLA HOUSE DEVELOPMENTS, S.L., Finalidad del tratamiento: Gestión y control de los servicios ofrecidos a través de la página Web de Servicios inmobiliarios, Envío de información a traves de newsletter y otros, Legitimación: Por consentimiento, Destinatarios: No se cederan los datos, salvo para elaborar contabilidad, Derechos de las personas interesadas: Acceder, rectificar y suprimir los datos, solicitar la portabilidad de los mismos, oponerse altratamiento y solicitar la limitación de éste, Procedencia de los datos: El Propio interesado, Información Adicional: Puede consultarse la información adicional y detallada sobre protección de datos Aquí.
Calificación energética
Calificación energética:

B


Bellahouse

Propiedades similares

WhatsApp