+34 684 46 86 76

Villa · Nouvelle construction Alicante · La marina · El pinet

98m2 <145m2 3 3 Oui
  • 98m2
  • <145m2
  • 3
  • 3
  • Oui

Key Features

Chambres: 3
Salles de bain: 3
Construit: 98m2
Intrigue: 145m2
Énergie: B

Les caractéristiques

Parking - Space
Jardin
Gated
Near Schools
Double Bedrooms: 3
Near Trees
Communal Pool
Near Bus Route
Location: Coastal, Urbanisation
Solarium: Yes
Useable Build Space: 90 Msq.
Number of Parking Spaces: 2
Beach: 500 Meters
Terrace: 90 Msq.

La description

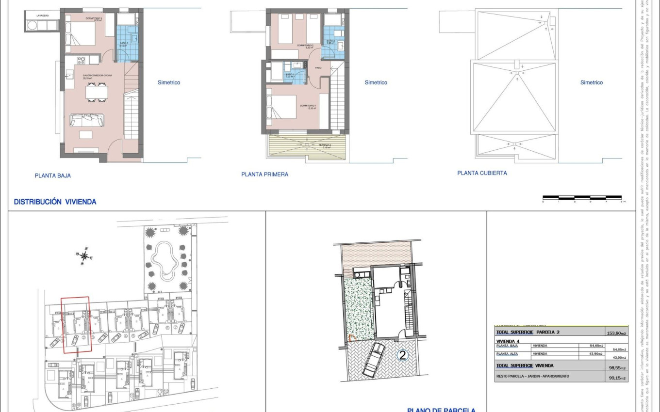
Nouvelles villas jumelées en bord de mer à La Marina - Plage d'El Pinet Une vie méditerranéenne exclusive près de la plage Ce nouveau complexe résidentiel de villas jumelées à La Marina, à seulement 500 mètres de la plage d'El Pinet, offre une combinaison imbattable de design moderne et d'environnement naturel privilégié. Situé à côté du parc naturel de Las Salinas, les résidents peuvent profiter de plages de sable doré, d'eaux cristallines, de dunes protégées et d'une forêt de pins centenaire - l'endroit idéal pour vivre toute l'année ou pour passer des vacances. Villas méditerranéennes modernes conçues pour le confort Les villas sont réparties sur deux étages et comprennent : 3 chambres spacieuses et 3 salles de bains Rez-de-chaussée avec cuisine ouverte et salon, une chambre, une salle de bains et accès au jardin privé avec place de parking Premier étage avec deux chambres, toutes deux avec salle de bains attenante, et une grande terrasse reliée à la chambre principale Chaque maison a été conçue avec des intérieurs lumineux et confortables et des finitions de haute qualité, créant une atmosphère unique et accueillante. Entièrement équipées avec des caractéristiques haut de gamme Ces villas sont livrées avec : Cuisine entièrement équipée avec plaque à induction, hotte aspirante, four, réfrigérateur et pré-installation pour lave-vaisselle Armoires modernes avec finitions haut de gamme Climatisation centrale entièrement installée Volets électriques Piscine communautaire entourée de jardins paysagers Un emplacement privilégié sur la Costa Blanca Vivre à La Marina, c'est profiter de toutes les commodités d'une ville bien desservie tout en étant entouré par la nature et la mer Méditerranée. À quelques minutes à pied, vous trouverez des magasins, des restaurants et tous les services essentiels. Distances vers les principaux points d'intérêt : Plage d'El Pinet : 500 m Ville d'Elche : 17 km Aéroport international d'Alicante-Elche : 22 km Parcours de golf (La Marquesa, El Plantío) : 15-20 km Ville et port d'Alicante : 30 km Le style de vie côtier idéal Que vous recherchiez une résidence permanente, une résidence secondaire ou un investissement intelligent, ces villas à El Pinet offrent un style de vie marqué par la mer, la nature et le confort moderne. Avec un ensoleillement toute l'année et un emplacement privilégié, La Marina est l'un des endroits les plus prisés de la Costa Blanca. Contactez-nous dès aujourd'hui pour organiser une visite et acquérir la villa de vos rêves au bord de la Méditerranée.

Emplacement

Financement

Cette information donnée ici est sujette à des erreurs et ne fait partie d'aucun contrat. L'offre peut être modifiée ou retirée sans préavis. Les prix n'incluent pas les coûts d'achat

Calculer les hypothèques

Échange de devises

  • Livres sterling: 396.622 GBP
  • Rouble russe: 396.622 RUB
  • Franc suisse: 420.260 CHF
  • Yuan chinois: 3.671.495 CNY
  • Dollar: 539.830 USD
  • Couronne suédoise: 4.976.478 SEK
  • La couronne norvégienne: 4.967.069 NOK
459.000€

Demander des informations

Responsable del tratamiento: BELLA HOUSE DEVELOPMENTS, S.L., Finalidad del tratamiento: Gestión y control de los servicios ofrecidos a través de la página Web de Servicios inmobiliarios, Envío de información a traves de newsletter y otros, Legitimación: Por consentimiento, Destinatarios: No se cederan los datos, salvo para elaborar contabilidad, Derechos de las personas interesadas: Acceder, rectificar y suprimir los datos, solicitar la portabilidad de los mismos, oponerse altratamiento y solicitar la limitación de éste, Procedencia de los datos: El Propio interesado, Información Adicional: Puede consultarse la información adicional y detallada sobre protección de datos Aquí.
Énergie
Énergie:

B


Bellahouse

Propriétés similaires

WhatsApp