Villa · Nieuwbouw MURCIA · Lorca · Purias

141m2 <531m2 3 3
  • 141m2
  • <531m2
  • 3
  • 3

Belangrijkste kenmerken

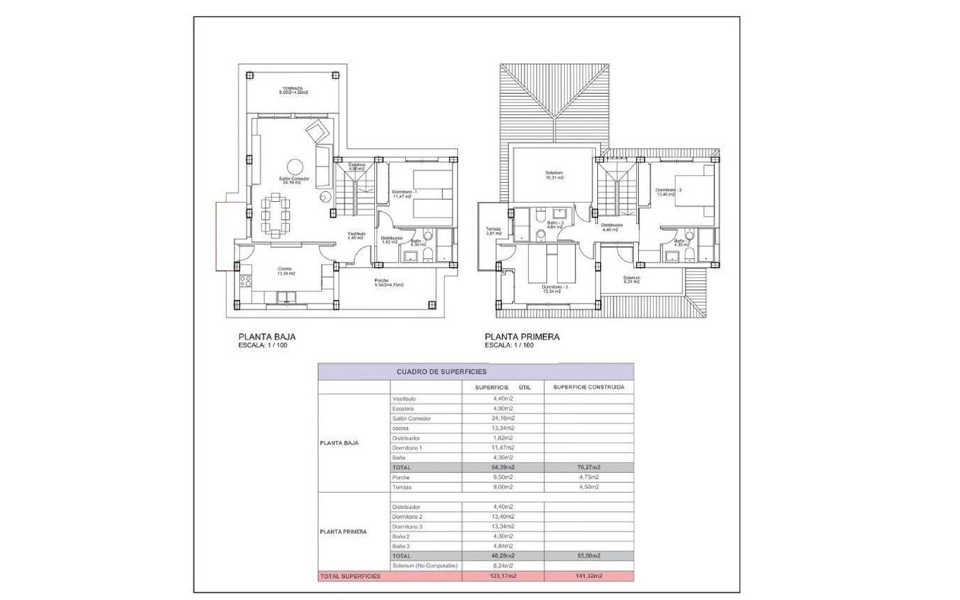
Slaapkamers: 3
Badkamers: 3
Gebouwd: 141m2
Perceel: 531m2
Energieniveau: B

Kenmerken

Tuin
Gated
Near Schools
Air Conditioning: Pre-Installed
Double Bedrooms: 3
Solarium: Yes
Useable Build Space: 120 Msq.
Number of Parking Spaces: 2
Terrace: 28 Msq.
Location: Rural, Urbanisation
Parking - Space
Key Ready
Beach: 23000 Meters

Beschrijving

Nieuwbouw villa's op ruime kavels van 500+ m² in Lorca Nieuwe villa's in mediterrane stijl in een veilige en rustige woonwijk Ontdek een exclusieve ontwikkeling van vrijstaande villa's op percelen van meer dan 500 m², strategisch gelegen in het zuidoosten van Spanje. Deze woningen bieden de perfecte combinatie van rust op het platteland, nabijheid van de kust en uitstekende wegverbindingen met grote steden en luchthavens. Genesteld in een bevoorrechte omgeving aan de Costa Cálida, profiteert dit project het hele jaar door van de zon, waardoor het een ideale locatie is om te genieten van de mediterrane levensstijl. Ruime, lichte huizen met privétuinen Deze villa's zijn ontworpen voor maximaal comfort en ontspanning en hebben open woonruimten met grote ramen die binnen- en buitenruimten naadloos met elkaar verbinden. De royale privétuin biedt de perfecte setting voor ontspanning in de buitenlucht, met de optie om een zwembad toe te voegen en de tuinarchitectuur aan te passen. Je kunt kiezen uit drie villamodellen, beschikbaar met één of twee verdiepingen, met 3 of 4 slaapkamers en 2 of 3 badkamers. Elke woning heeft een privé solarium, zodat bewoners optimaal kunnen genieten van de prachtige omgeving. Een veilige en goed uitgeruste gemeenschap Deze gesloten urbanisatie biedt een 24-uurs bewakingsdienst met gecontroleerde toegang, zodat alle bewoners gerust kunnen zijn. Ontworpen met groen wonen in het achterhoofd, bevat de gemeenschap: Twee grote aangelegde parken voor ontspanning en gezinsactiviteiten. Speciale sport- en speelterreinen om een actieve levensstijl te bevorderen. Met bomen omzoomde straten en een fietspad van 3,5 km langs de omtrek van de urbanisatie. Een commerciële zone bij de ingang, met een restaurant, supermarkt, benzinestation en andere essentiële diensten. Hoogwaardige afwerking voor maximaal comfort Elke villa is gebouwd met materialen van topkwaliteit en moderne installaties, waaronder: Pre-installatie voor gekanaliseerde airconditioning Pre-installatie voor aardgas Beveiligde toegangsdeur Climalit ramen met dubbele beglazing Volledig omheinde gemeenschap met 24-uurs bewaking Toplocatie - dichtbij de kust en stadsvoorzieningen Deze villa's liggen in een nieuw ontwikkeld gebied van de gemeente Lorca en bieden een natuurlijke en rustige omgeving met gemakkelijke toegang tot belangrijke locaties: Lorca centrum - 10 km Águilas stranden - 20 km Luchthaven Murcia-Corvera - 70 km Luchthaven Alicante - 130 km Winkelcentra en restaurants - 10 km Vind uw ideale huis in Costa Cálida Met 50 reeds voltooide woningen en een totaal van 320 geplande woningen, is dit je kans om een nieuwe villa in mediterrane stijl te kopen in een bloeiende nieuwe gemeenschap. Of het nu voor permanente bewoning, vakantiehuis of investering is, deze woningen bieden uitstekende waarde op een toplocatie. Neem vandaag nog contact met ons op voor meer informatie en een bezichtiging!

Locatie

Financieel

Aan deze informatie kunnen geen rechten worden ontleend

Bereken hypotheek

Wisselkantoor

  • Britse pond: 339.084 GBP
  • Russische roebel: 339.084 RUB
  • Zwitserse frank: 359.086 CHF
  • Chinese yuan: 3.130.789 CNY
  • Dollar: 458.903 USD
  • Zweedse kroon: 4.202.367 SEK
  • De Noorse kroon: 4.285.613 NOK
389.000€

Vraag meer informatie

Responsable del tratamiento: BELLA HOUSE DEVELOPMENTS, S.L., Finalidad del tratamiento: Gestión y control de los servicios ofrecidos a través de la página Web de Servicios inmobiliarios, Envío de información a traves de newsletter y otros, Legitimación: Por consentimiento, Destinatarios: No se cederan los datos, salvo para elaborar contabilidad, Derechos de las personas interesadas: Acceder, rectificar y suprimir los datos, solicitar la portabilidad de los mismos, oponerse altratamiento y solicitar la limitación de éste, Procedencia de los datos: El Propio interesado, Información Adicional: Puede consultarse la información adicional y detallada sobre protección de datos Aquí.
Energieniveau
Energieniveau:

B


Bellahouse

Vergelijkbare woningen

WhatsApp