+34 684 46 86 76

Villa · Nieuwbouw Alicante · Torrevieja · Torreblanca

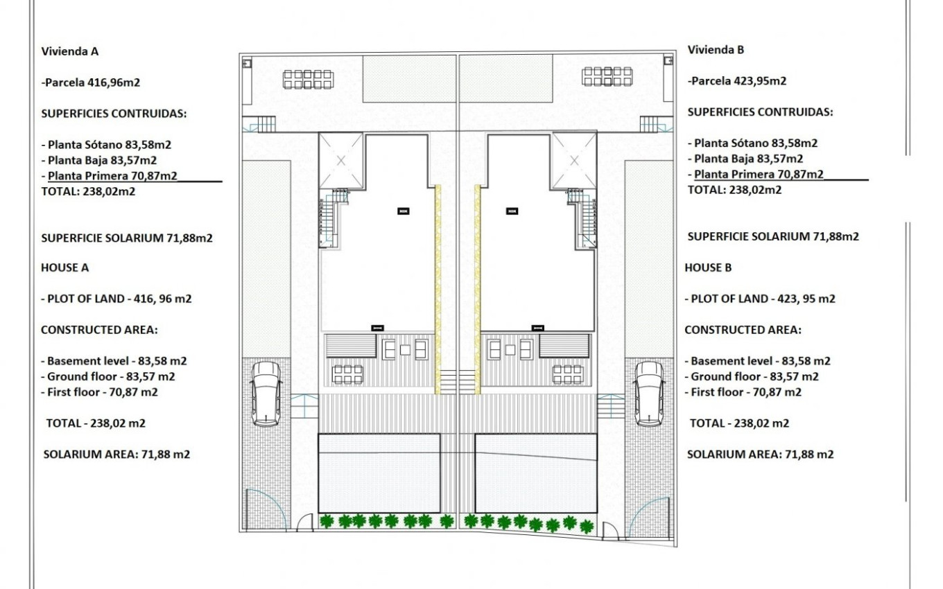
238m2 <420m2 4 4 Ja
  • 238m2
  • <420m2
  • 4
  • 4
  • Ja

Belangrijkste kenmerken

Slaapkamers: 4
Badkamers: 4
Gebouwd: 238m2
Perceel: 420m2
Energieniveau: B

Kenmerken

Under-Build / Basement
Double Bedrooms: 4
Beach: 1200 Meters
Terrace: 102 Msq.
Parking - Space
Useable Build Space: 180 Msq.
Key Ready
Storage / Trastero
Tuin
Prive zwembad
Gated
Number of Parking Spaces: 1
Near Schools
Air Conditioning: Pre-Installed
Near Trees
Near Commercial Center
Location: Coastal
Near Bus Route
Solarium: Yes

Beschrijving

2 NIEUWBOUW VILLA'S IN TORREVIEJA 2 Nieuwe Mooie villa's in Torrevieja. Villas heeft 4 slaapkamers, 4 badkamers, open keuken met de zithoek, inbouwkasten, eigen tuin met het zwembad en off road parkeerplaats, prive solarium en kelder. Villas gelegen op 15 minuten lopen naar het beroemde Playa de La Mata (5 minuten met de auto). Torrevieja is een Spaanse stad in de provincie Alicante, aan de Costa Blanca. Het is bekend om zijn typisch mediterrane klimaat en kustlijn. Het heeft promenades met resorts langs zijn zandstranden. Het kleine Museum van de Zee en het Zout herbergt tentoonstellingen over de visserij- en zoutgeschiedenis van de stad. In het binnenland vindt u het natuurpark Lagunas de La Mata-Torrevieja met wandelpaden en twee zoutmeren, de ene roze en de andere groen. De luchthaven van Alicante ligt op 40 minuten afstand en die van Murcia op ongeveer 1 uur.

Locatie

Financieel

Aan deze informatie kunnen geen rechten worden ontleend

Bereken hypotheek

Wisselkantoor

  • Britse pond: 653.760 GBP
  • Russische roebel: 653.760 RUB
  • Zwitserse frank: 692.325 CHF
  • Chinese yuan: 6.036.225 CNY
  • Dollar: 884.775 USD
  • Zweedse kroon: 8.102.250 SEK
  • De Noorse kroon: 8.262.750 NOK
750.000€

Vraag meer informatie

Responsable del tratamiento: BELLA HOUSE DEVELOPMENTS, S.L., Finalidad del tratamiento: Gestión y control de los servicios ofrecidos a través de la página Web de Servicios inmobiliarios, Envío de información a traves de newsletter y otros, Legitimación: Por consentimiento, Destinatarios: No se cederan los datos, salvo para elaborar contabilidad, Derechos de las personas interesadas: Acceder, rectificar y suprimir los datos, solicitar la portabilidad de los mismos, oponerse altratamiento y solicitar la limitación de éste, Procedencia de los datos: El Propio interesado, Información Adicional: Puede consultarse la información adicional y detallada sobre protección de datos Aquí.
Energieniveau
Energieniveau:

B


Bellahouse
WhatsApp