+34 684 46 86 76

Villa · Nieuwbouw Alicante · La marina · El pinet

98m2 <145m2 3 3 Ja
  • 98m2
  • <145m2
  • 3
  • 3
  • Ja

Belangrijkste kenmerken

Slaapkamers: 3
Badkamers: 3
Gebouwd: 98m2
Perceel: 145m2
Energieniveau: B

Kenmerken

Location: Coastal, Urbanisation
Solarium: Yes
Useable Build Space: 90 Msq.
Number of Parking Spaces: 2
Beach: 500 Meters
Terrace: 90 Msq.
Parking - Space
Tuin
Gated
Near Schools
Double Bedrooms: 3
Near Trees
Communal Pool
Near Bus Route

Beschrijving

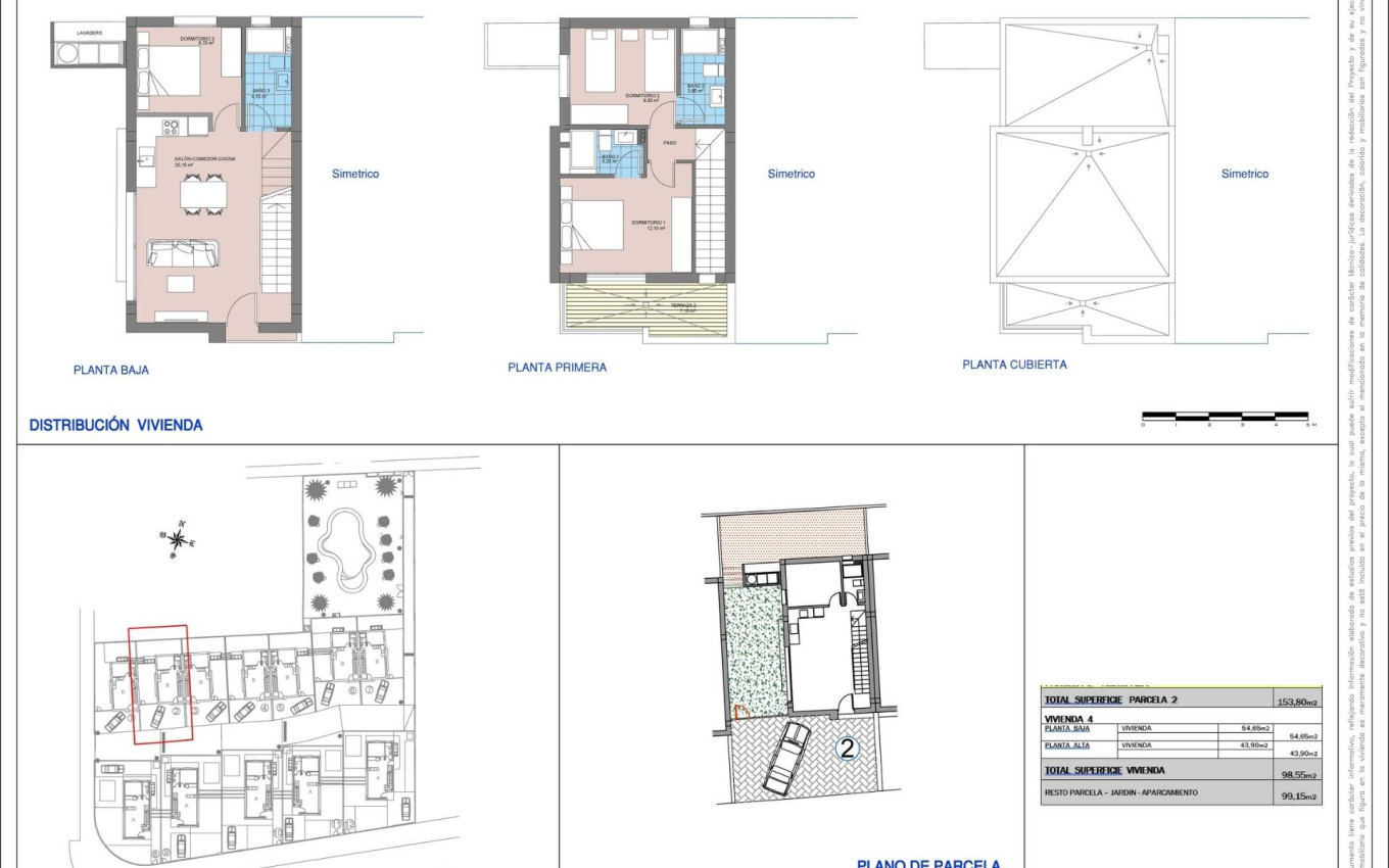
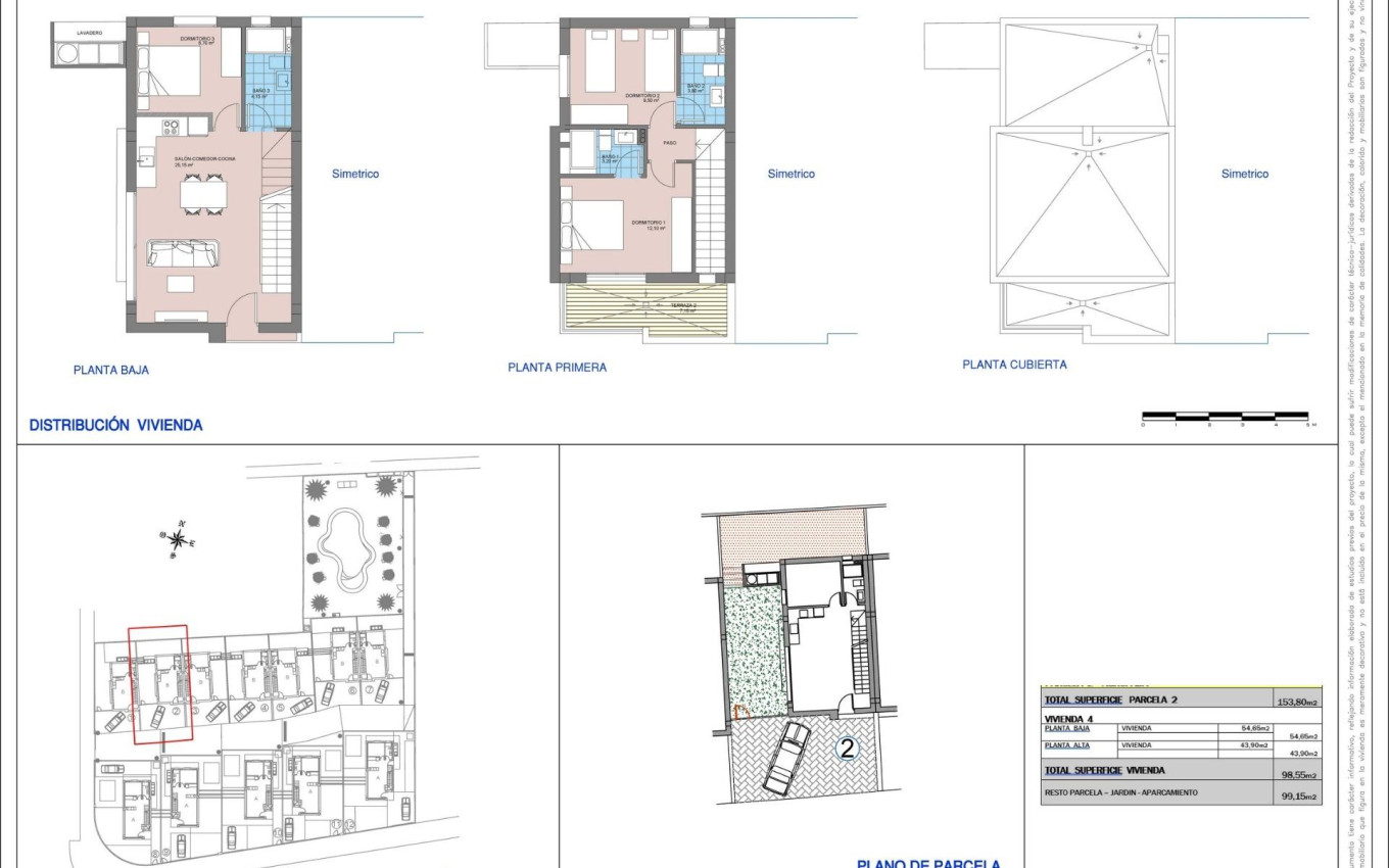
Nieuwe halfvrijstaande villa's aan zee in La Marina - El Pinet Beach Exclusief mediterraan wonen vlakbij het strand Deze nieuwe woonwijk met halfvrijstaande villa's in La Marina, op slechts 500 meter van het strand van El Pinet, biedt een onovertroffen combinatie van modern design en een bevoorrechte natuurlijke omgeving. Gelegen naast het natuurpark Las Salinas, kunnen bewoners genieten van gouden zandstranden, kristalhelder water, beschermde duinen en een eeuwenoud dennenbos - de perfecte plek om het hele jaar door te wonen of te genieten als vakantieverblijf. Moderne mediterrane villa's ontworpen voor comfort De villa's zijn verdeeld over twee verdiepingen en beschikken over: 3 ruime slaapkamers en 3 badkamers Begane grond met open keuken en woonkamer, een slaapkamer, een badkamer en toegang tot de privétuin met parkeerplaats Eerste verdieping met twee slaapkamers, beide met eigen badkamer, en een groot terras dat in verbinding staat met de hoofdslaapkamer Elke woning is ontworpen met een licht, comfortabel interieur en hoogwaardige afwerking, waardoor een unieke en gastvrije sfeer is gecreëerd. Volledig uitgerust met premium voorzieningen Deze villa's worden geleverd met: Volledig ingerichte keuken met inductiekookplaat, afzuigkap, oven, koelkast en voorinstallatie voor vaatwasser Moderne kasten met hoogwaardige afwerking Volledig geïnstalleerde airconditioning met luchtkanalen Elektrische rolluiken Gemeenschappelijk zwembad omgeven door aangelegde tuinen Een toplocatie aan de Costa Blanca Wonen in La Marina betekent genieten van alle gemakken van een goed verzorgde stad, terwijl u omringd bent door de natuur en de Middellandse Zee. Op loopafstand vindt u winkels, restaurants en essentiële voorzieningen. Afstanden tot belangrijke bezienswaardigheden: Strand van El Pinet: 500 m Stad Elche: 17 km Internationale luchthaven Alicante-Elche: 22 km Golfbanen (La Marquesa, El Plantío): 15-20 km Stad en haven van Alicante: 30 km De perfecte levensstijl aan de kust Of u nu op zoek bent naar een permanente woning, een tweede huis of een slimme investering, deze villa's in El Pinet bieden een levensstijl die wordt gekenmerkt door zee, natuur en modern comfort. Met het hele jaar door zon en een bevoorrechte ligging is La Marina een van de meest gewilde plaatsen aan de Costa Blanca. Neem vandaag nog contact met ons op om een bezichtiging te regelen en uw droomvilla aan de Middellandse Zee te bemachtigen.

Locatie

Financieel

Aan deze informatie kunnen geen rechten worden ontleend

Bereken hypotheek

Wisselkantoor

  • Britse pond: 396.622 GBP
  • Russische roebel: 396.622 RUB
  • Zwitserse frank: 420.260 CHF
  • Chinese yuan: 3.671.495 CNY
  • Dollar: 539.830 USD
  • Zweedse kroon: 4.976.478 SEK
  • De Noorse kroon: 4.967.069 NOK
459.000€

Vraag meer informatie

Responsable del tratamiento: BELLA HOUSE DEVELOPMENTS, S.L., Finalidad del tratamiento: Gestión y control de los servicios ofrecidos a través de la página Web de Servicios inmobiliarios, Envío de información a traves de newsletter y otros, Legitimación: Por consentimiento, Destinatarios: No se cederan los datos, salvo para elaborar contabilidad, Derechos de las personas interesadas: Acceder, rectificar y suprimir los datos, solicitar la portabilidad de los mismos, oponerse altratamiento y solicitar la limitación de éste, Procedencia de los datos: El Propio interesado, Información Adicional: Puede consultarse la información adicional y detallada sobre protección de datos Aquí.
Energieniveau
Energieniveau:

B


Bellahouse

Vergelijkbare woningen

WhatsApp