+34 684 46 86 76

Appartement · Nieuwbouw Alicante · Torrevieja · Playa de El Cura

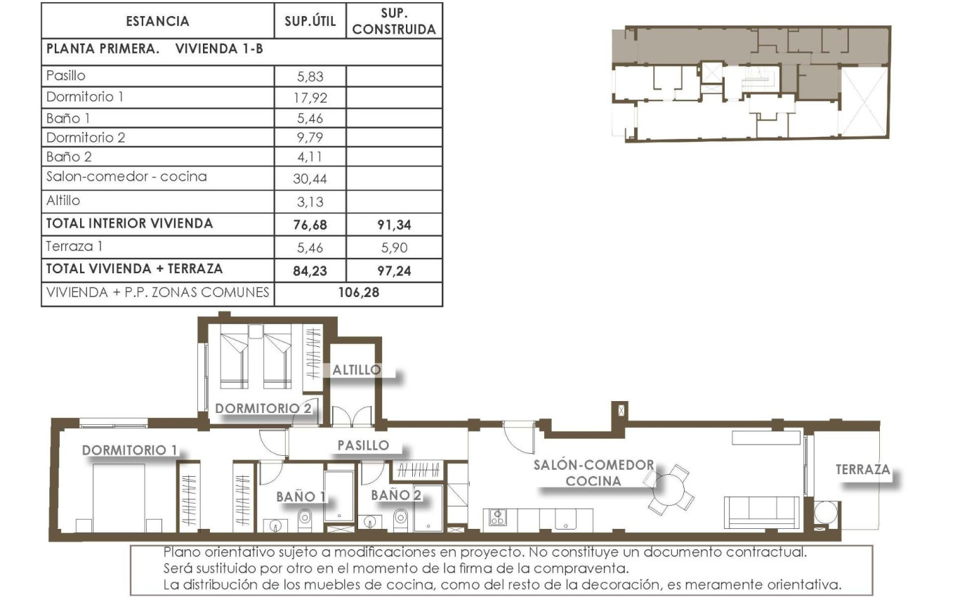
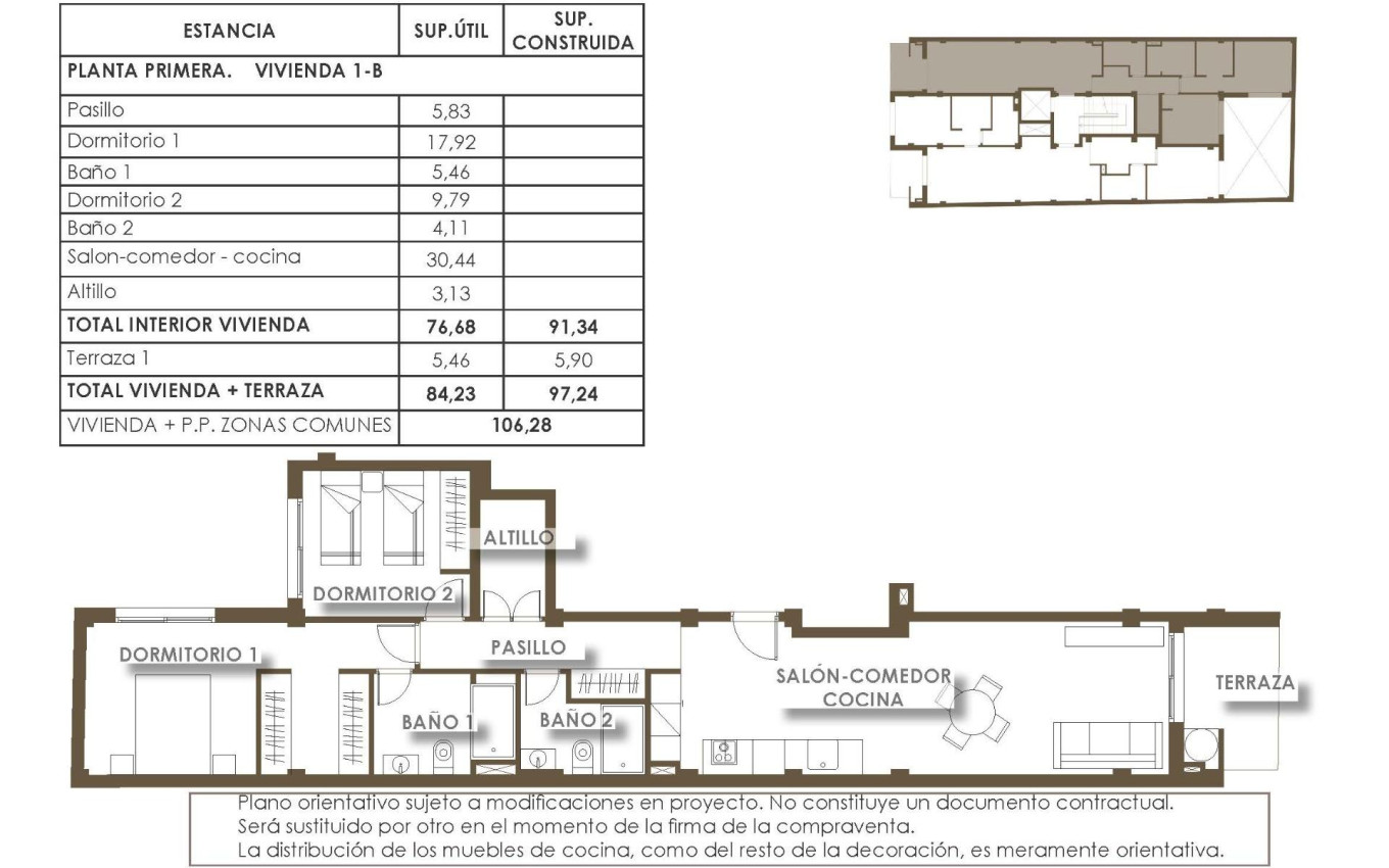
91m2 2 2 Ja
  • 91m2
  • 2
  • 2
  • Ja

Belangrijkste kenmerken

Slaapkamers: 2
Badkamers: 2
Gebouwd: 91m2
Energieniveau: B

Kenmerken

Elevator/Lift
Useable Build Space: 76 Msq.
Terrace: 5 Msq.
Beach: 150 Meters
Space
Gated
Near Schools
Air Conditioning: Pre-Installed
Near Commercial Center
Location: Coastal
Double Bedrooms: 2
Communal Pool
Near Bus Route
Near Childrens Parks

Beschrijving

Moderne nieuwbouwappartementen in het hart van Torrevieja Toplocatie op slechts 150 m van de zee Dit uitzonderlijke nieuwe project ligt in het centrum van Torrevieja, op slechts 150 m van de natuurlijke zwembaden en de boulevard, en op slechts 500 m van Playa del Cura. Omgeven door een uitgebreid aanbod aan voorzieningen, waaronder winkels, supermarkten, parken, cafés en restaurants, biedt de omgeving alles wat u nodig heeft op loopafstand. De combinatie van stedelijk gemak en kustrust maakt het tot een van de meest aantrekkelijke woonwijken van de stad. Moderne appartementen met 1 en 2 slaapkamers Het project biedt moderne appartementen met 1 of 2 slaapkamers en 1 of 2 badkamers, waaronder twee exclusieve penthouses met privéterras, barbecue en privézwembad. Alle woningen zijn ontworpen met een open indeling die het natuurlijke licht maximaliseert, met ruime terrassen en stijlvolle Amerikaanse keukens. Elk appartement beschikt over een volledig uitgeruste keuken met apparatuur, complete badkamers met meubilair, doucheschermen en vloerverwarming, evenals binnenverlichting. Er is ook een voorinstallatie voor airconditioning, zodat u het hele jaar door kunt genieten van comfort. Aantrekkelijke gemeenschappelijke ruimtes om te ontspannen Bewoners kunnen genieten van uitstekende gemeenschappelijke faciliteiten die zijn ontworpen voor welzijn en ontspanning. Op de begane grond vindt u een verfrissend gemeenschappelijk zwembad en een ontspannende sauna. Het dakterras biedt een gedeeld solarium, ideaal om te zonnebaden en te genieten van de mediterrane sfeer. Geniet van een unieke kust- en natuurlijke omgeving Torrevieja staat bekend om zijn milde mediterrane klimaat, met een gemiddelde jaartemperatuur van 20 ºC, perfect om het hele jaar door te wonen. De stad is de thuisbasis van de beroemde zoutmeren en het beschermde natuurpark La Mata en Torrevieja, gelegen op slechts 4 km van het project. Met zijn levendige roze en groene lagunes, schilderachtige wandelroutes en diverse fauna biedt het een gezonde en inspirerende natuurlijke omgeving. Afstanden tot belangrijke bezienswaardigheden Puerto Deportivo de Torrevieja 1 km Parque Natural de La Mata 4 km Villamartin Golf 8 km Luchthaven Alicante 45 km Luchthaven Murcia 60 km Leef de mediterrane levensstijl Verzeker uzelf van een moderne woning in een van de meest gewilde kuststeden aan de Costa Blanca. Neem vandaag nog contact met ons op om een bezichtiging in te plannen en uw plek in dit uitstekende nieuwe project te reserveren.

Locatie

Financieel

Aan deze informatie kunnen geen rechten worden ontleend

Bereken hypotheek

Wisselkantoor

  • Britse pond: 251.329 GBP
  • Russische roebel: 251.329 RUB
  • Zwitserse frank: 265.843 CHF
  • Chinese yuan: 2.284.098 CNY
  • Dollar: 336.893 USD
  • Zweedse kroon: 3.138.235 SEK
  • De Noorse kroon: 3.130.260 NOK
290.000€

Vraag meer informatie

Responsable del tratamiento: BELLA HOUSE DEVELOPMENTS, S.L., Finalidad del tratamiento: Gestión y control de los servicios ofrecidos a través de la página Web de Servicios inmobiliarios, Envío de información a traves de newsletter y otros, Legitimación: Por consentimiento, Destinatarios: No se cederan los datos, salvo para elaborar contabilidad, Derechos de las personas interesadas: Acceder, rectificar y suprimir los datos, solicitar la portabilidad de los mismos, oponerse altratamiento y solicitar la limitación de éste, Procedencia de los datos: El Propio interesado, Información Adicional: Puede consultarse la información adicional y detallada sobre protección de datos Aquí.
Energieniveau
Energieniveau:

B


Bellahouse

Vergelijkbare woningen

WhatsApp