+34 684 46 86 76

Villa · Nieuwbouw Alicante · Jávea Xàbia · Valle del Sol

468m2 <1.000m2 4 4 Ja
  • 468m2
  • <1.000m2
  • 4
  • 4
  • Ja

Belangrijkste kenmerken

Slaapkamers: 4
Badkamers: 4
Gebouwd: 468m2
Perceel: 1.000m2
Energieniveau: B

Kenmerken

Tuin
Prive zwembad
Gated
Near Schools
Near Commercial Center
Location: Coastal, Urbanisation
Beach: 3000 Meters
Under-Build / Basement
Double Bedrooms: 4
Number of Parking Spaces: 2
Parking - Space
Patio
Laundry Room
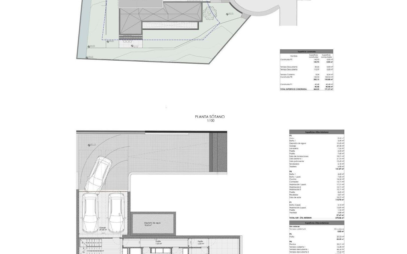
Useable Build Space: 270 Msq.
Terrace: 124 Msq.
Storage / Trastero
Toilet: 1

Beschrijving

Moderne nieuwbouwwoning met luxe voorzieningen in Javea Eigentijds mediterraan wonen aan de Costa Blanca Deze prachtige vrijstaande nieuwbouwwoning in Javea combineert hoogwaardige afwerking, elegant design en optimale functionaliteit over drie ruime verdiepingen. Gelegen in een van de meest gewilde kustplaatsen aan de Costa Blanca Noord, biedt het pand een rustige woonomgeving, omgeven door groene bergen, natuurparken en prachtige stranden. Javea staat bekend om zijn kristalheldere water, traditionele gastronomie en mediterrane levensstijl, waardoor het een ideale locatie is voor zowel permanent wonen als investeren. Ruime kelder ontworpen voor veelzijdigheid De kelderverdieping is zorgvuldig ontworpen om aan de behoeften van de moderne levensstijl te voldoen. Het omvat een open garage voor twee auto's, een badkamer, een gastentoilet, een open conceptruimte, een multifunctionele ruimte en een patio die natuurlijk licht in de ruimte brengt. Deze verdieping biedt eindeloze mogelijkheden, of u nu een fitnessruimte, entertainmentruimte, kantoor of gastensuite voor ogen heeft. Elegante begane grond met aaneengesloten leefruimtes De begane grond beschikt over een lichte woon-eetkamer die naadloos aansluit op de volledig uitgeruste keuken, waardoor een perfecte ruimte ontstaat voor familiebijeenkomsten. Een entreehal, gastentoilet en gangen zorgen voor extra functionaliteit en een goede doorstroming. Deze verdieping omvat twee comfortabele slaapkamers die een moderne badkamer delen en een royale hoofdslaapkamer met een en suite badkamer, die privacy en comfort biedt. Luxe master suite op de bovenverdieping De bovenverdieping is gewijd aan een tweede hoofdslaapkamer, die een exclusief toevluchtsoord biedt met een eigen badkamer, kleedkamer en gang. Deze privéruimte garandeert comfort en rust met een prachtig uitzicht op het omringende groene landschap. Buitenleven ontworpen voor het mediterrane klimaat De buitenruimtes van het pand zijn ontworpen om het hele jaar door van het buitenleven te genieten. Het beschikt over twee overdekte terrassen en twee onoverdekte terrassen op de begane grond. Een van de overdekte terrassen omringt het zwembad, perfect om in de zomer te ontspannen, terwijl het onoverdekte terras naast de keuken ideaal is om buiten te eten en samen te komen. De villa is uitgerust met vloerverwarming en airconditioning en garandeert comfort in elk seizoen. Toplocatie in Javea Strand El Arenal 3 km Haven en jachthaven van Javea 7 km Golfclub Javea 3 km Luchthaven Alicante 100 km Luchthaven Valencia 125 km Uw mediterrane thuis wacht op u Of u nu op zoek bent naar een luxe woning, een vakantiehuis of een veilige langetermijninvestering, deze villa biedt een uitzonderlijke levensstijl in Javea. Neem vandaag nog contact met ons op om een bezichtiging te regelen en uw toekomstige thuis aan de Costa Blanca te ontdekken.

Locatie

Financieel

Aan deze informatie kunnen geen rechten worden ontleend

Bereken hypotheek

Wisselkantoor

  • Britse pond: 1.917.696 GBP
  • Russische roebel: 1.917.696 RUB
  • Zwitserse frank: 2.030.820 CHF
  • Chinese yuan: 17.706.260 CNY
  • Dollar: 2.595.340 USD
  • Zweedse kroon: 23.766.600 SEK
  • De Noorse kroon: 24.237.400 NOK
2.200.000€

Vraag meer informatie

Responsable del tratamiento: BELLA HOUSE DEVELOPMENTS, S.L., Finalidad del tratamiento: Gestión y control de los servicios ofrecidos a través de la página Web de Servicios inmobiliarios, Envío de información a traves de newsletter y otros, Legitimación: Por consentimiento, Destinatarios: No se cederan los datos, salvo para elaborar contabilidad, Derechos de las personas interesadas: Acceder, rectificar y suprimir los datos, solicitar la portabilidad de los mismos, oponerse altratamiento y solicitar la limitación de éste, Procedencia de los datos: El Propio interesado, Información Adicional: Puede consultarse la información adicional y detallada sobre protección de datos Aquí.
Energieniveau
Energieniveau:

B


Bellahouse

Vergelijkbare woningen

WhatsApp