+34 684 46 86 76

Appartement · Nieuwbouw Alicante · Villajoyosa · Playa del Torres

48m2 <48m2 1 1 Ja
  • 48m2
  • <48m2
  • 1
  • 1
  • Ja

Belangrijkste kenmerken

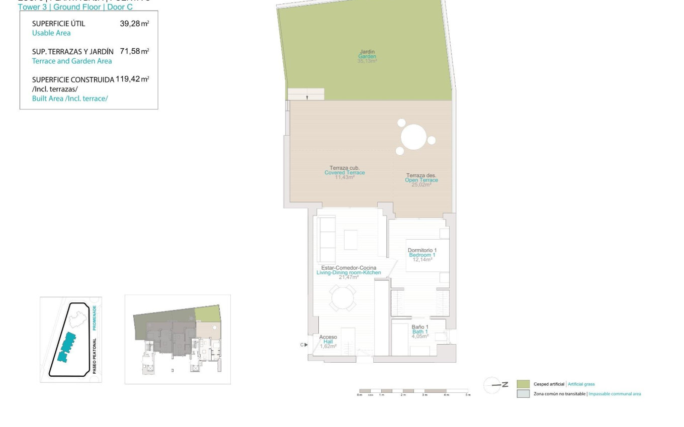
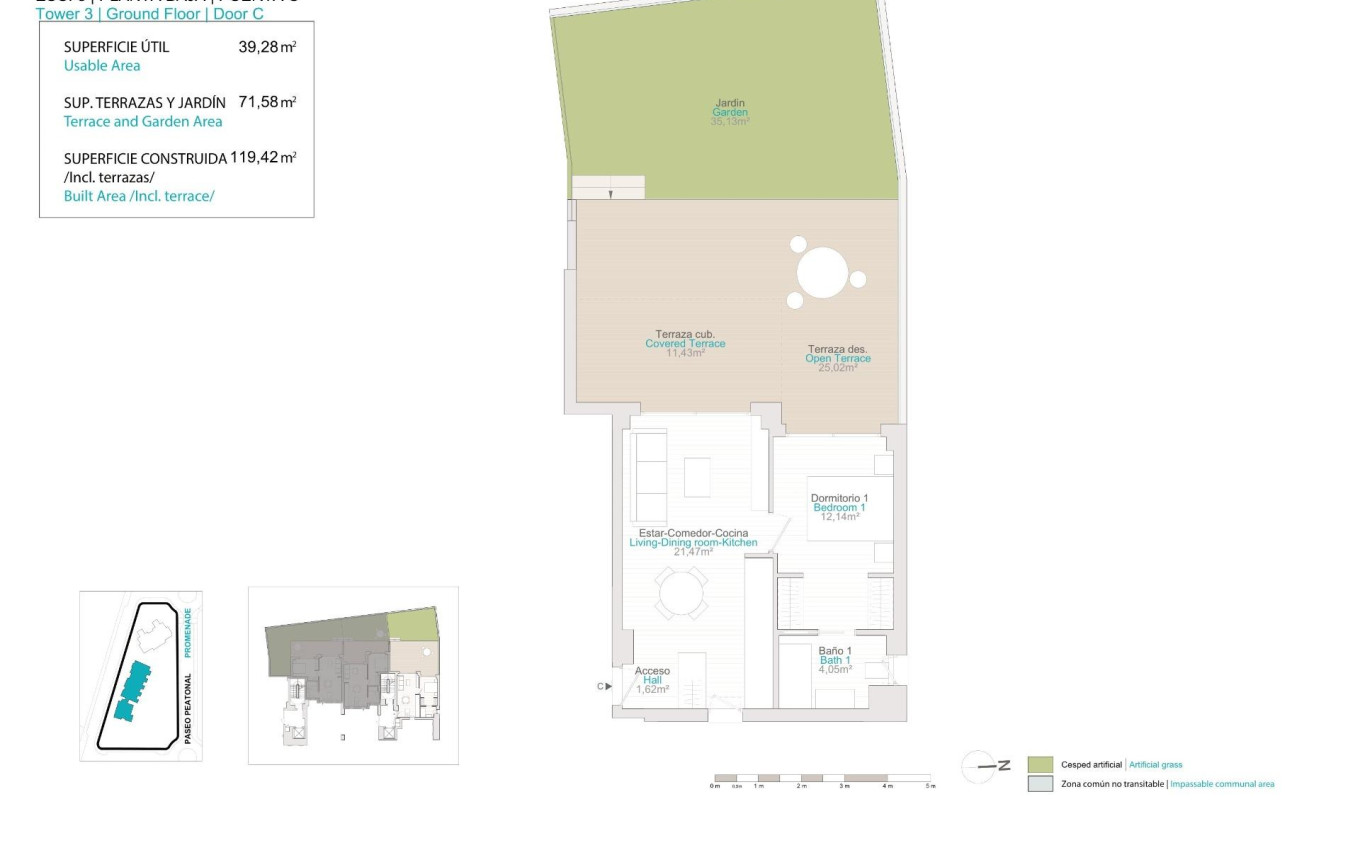
Slaapkamers: 1
Badkamers: 1
Gebouwd: 48m2
Perceel: 48m2
Energieniveau: B

Kenmerken

Tuin
Gated
Number of Parking Spaces: 1
Near Schools
Location: Urbanisation
Air Conditioning: Pre-Installed
Near Commercial Center
Communal Pool
Elevator/Lift
Terrace: 18 Msq.
Gym
Beach: 200 Meters
Double Bedrooms: 1
Useable Build Space: 40 Msq.
Parking - Space

Beschrijving

NIEUWBOUW COMPLEX IN VILLAYOJOSA Nieuwbouw wooncomplex van 42 appartementen en penthouses in Villayojosa gelegen op steenworp afstand van het strand. Luxe woningen met 1, 2 en 3 slaapkamers ontworpen tot in het kleinste detail. Op slechts 200 meter van de zee, met ruime terrassen zijn perfect om te ontspannen en te genieten van het uitzicht op zee. Gelegen in een natuurlijke omgeving, heeft deze promotie een zwembad, tuinen, kinderruimte, uitgeruste fitnessruimte en sauna. Gelijkvloerse woningen met 1 slaapkamer en 1 badkamer met terrassen en privétuinen. Appartementen met 1 en 2 slaapkamers en 1 en 2 badkamers met grote terrassen waar u een overdekt gedeelte en een open gedeelte heeft. Penthouses met 3 slaapkamers en 2 badkamers met terrassen en privé solariums. Alle woningen hebben een eigen parkeerplaats. Villajoyosa is een verborgen parel aan de Spaanse Costa Blanca. Dit kleurrijke vissersdorp ligt tussen Benidorm en El Campello, op ongeveer 30 minuten rijden van de luchthaven van Alicante. De laatste jaren is het idyllische plaatsje uitgegroeid tot een gewilde locatie voor tweedehuisbewoners en toeristen. Villajoyosa heeft veel te bieden, van het brede zandstrand tot de smalle en kleurrijke straatjes van het historische centrum. Vandaag de dag wonen er meer dan dertigduizend mensen in Villajoyosa en vooral de kleurrijke huizen bieden volop inspiratie voor de vele kunstenaars. Villajoyosa staat ook bekend om het heerlijke museum van de chocoladefabriek Valor.

Locatie

Financieel

Aan deze informatie kunnen geen rechten worden ontleend

Bereken hypotheek

Wisselkantoor

  • Britse pond: 276.994 GBP
  • Russische roebel: 276.994 RUB
  • Zwitserse frank: 293.864 CHF
  • Chinese yuan: 2.542.951 CNY
  • Dollar: 372.410 USD
  • Zweedse kroon: 3.445.848 SEK
  • De Noorse kroon: 3.535.047 NOK
318.000€

Vraag meer informatie

Responsable del tratamiento: BELLA HOUSE DEVELOPMENTS, S.L., Finalidad del tratamiento: Gestión y control de los servicios ofrecidos a través de la página Web de Servicios inmobiliarios, Envío de información a traves de newsletter y otros, Legitimación: Por consentimiento, Destinatarios: No se cederan los datos, salvo para elaborar contabilidad, Derechos de las personas interesadas: Acceder, rectificar y suprimir los datos, solicitar la portabilidad de los mismos, oponerse altratamiento y solicitar la limitación de éste, Procedencia de los datos: El Propio interesado, Información Adicional: Puede consultarse la información adicional y detallada sobre protección de datos Aquí.
Energieniveau
Energieniveau:

B


Bellahouse

Vergelijkbare woningen

WhatsApp