Appartement · Nieuwbouw Alicante · Guardamar del Segura · EL RASO

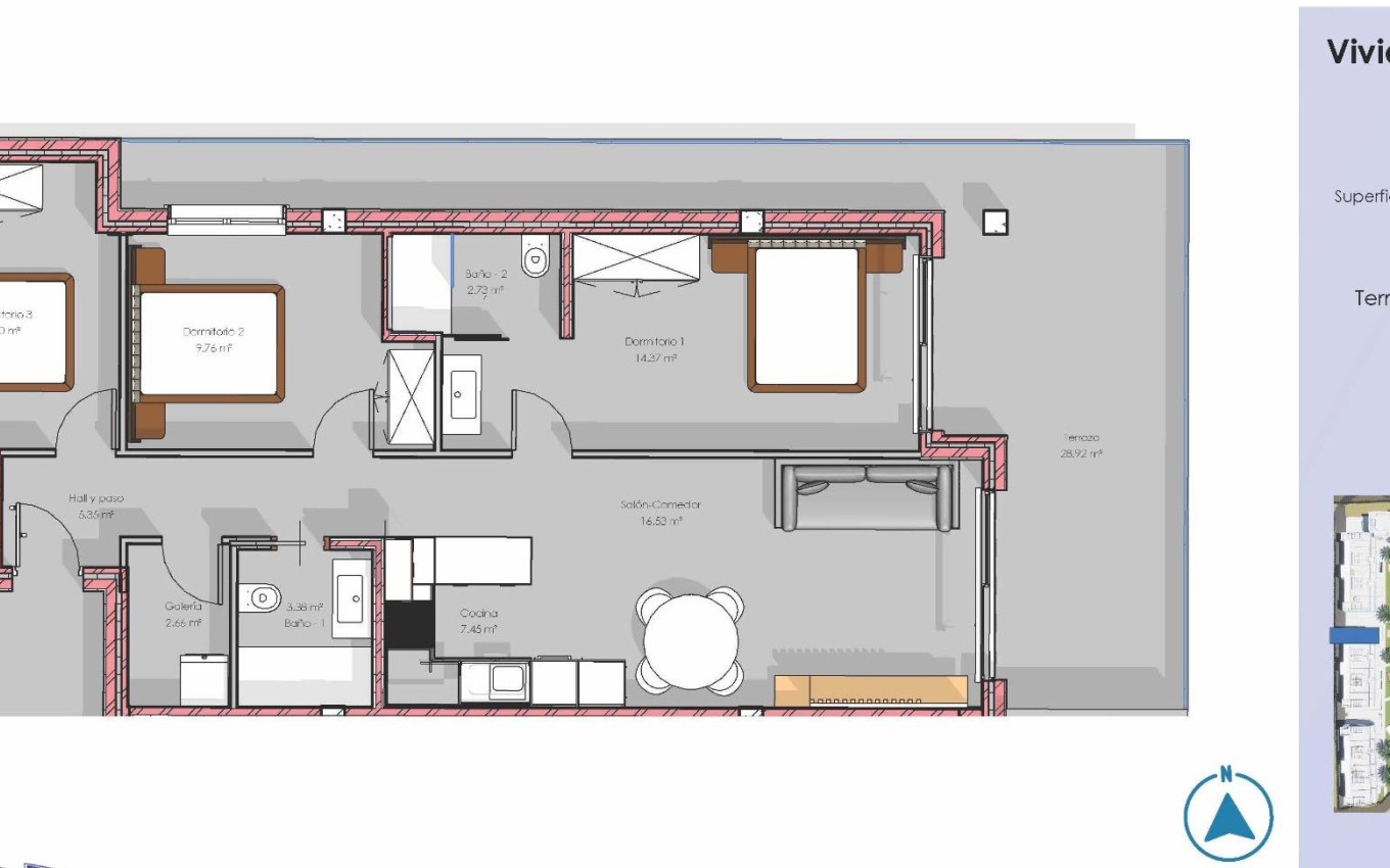
82m2 3 2 Ja
  • 82m2
  • 3
  • 2
  • Ja

Belangrijkste kenmerken

Slaapkamers: 3
Badkamers: 2
Gebouwd: 82m2
Energieniveau: B

Kenmerken

Gemeubileerd
Gated
Number of Parking Spaces: 1
Near Schools
Double Bedrooms: 3
Near Commercial Center
Communal Pool
Location: Coastal, Urbanisation
Near Childrens Parks
Useable Build Space: 75 Msq.
Elevator/Lift
Under-Build / Basement
Gym
First Line to the Sea
Beach: 3500 Meters
Terrace: 26 Msq.
Space
Storage / Trastero

Beschrijving

Moderne gemeubileerde appartementen in El Raso-Guardamar: eigentijds wonen vlak bij het strand en de golfbaan Exclusief wooncomplex in Guardamar del Segura Ontdek dit uitzonderlijke nieuwbouwproject met 120 stijlvolle appartementen in El Raso, een zeer gewilde wijk van Guardamar del Segura aan de Costa Blanca. Omgeven door natuurlijke landschappen en dicht bij de Middellandse Zeekust biedt dit wooncomplex een perfecte balans tussen rust en bereikbaarheid. El Raso staat bekend om zijn rustige omgeving, terwijl het slechts enkele minuten verwijderd is van het bruisende stadscentrum, zandstranden en een breed scala aan voorzieningen, waaronder restaurants, winkels en recreatiefaciliteiten. Moderne woningen ontworpen voor comfort en stijl Het project biedt appartementen met 2 en 3 slaapkamers met verschillende indelingen die bij elke levensstijl passen. Kies uit woningen op de begane grond met privétuinen, appartementen op de tussenverdiepingen met ruime terrassen, of penthouses met privéterras, ideaal om het hele jaar door van het mediterrane klimaat te genieten. Alle woningen worden volledig gemeubileerd en instapklaar opgeleverd, inclusief volledig uitgeruste keukens met apparatuur en complete badkamerinrichting met meubilair, spiegels en doucheschermen. Elke woning beschikt ook over een ondergrondse parkeerplaats en een berging, wat vanaf dag één voor gemak en functionaliteit zorgt. Hoogwaardige voorzieningen en energiezuinig wonen Deze moderne woningen zijn gebouwd met oog voor detail en ontworpen voor maximaal comfort. Tot de voorzieningen behoren airconditioning via luchtkanalen, elektrische rolluiken en een compleet verlichtingspakket. De combinatie van hoogwaardige materialen en slim ontwerp creëert lichte en functionele leefruimtes die het dagelijks leven verrijken en tegelijkertijd energiezuinig zijn. Uitstekende gemeenschappelijke ruimtes en lifestylevoorzieningen Het wooncomplex biedt een breed scala aan eersteklas gemeenschappelijke voorzieningen die zijn ontworpen voor ontspanning en welzijn. Bewoners kunnen genieten van een groot zwembad omgeven door aangelegde tuinen, een volledig uitgeruste fitnessruimte, een indoor spa, een petanquebaan en een kinderspeelplaats. Aan elk detail is zorgvuldig aandacht besteed om een gemeenschap te creëren waar comfort, vrije tijd en sociaal leven samenkomen. Toplocatie met uitstekende verbindingen El Raso ligt op een strategische locatie dicht bij belangrijke bezienswaardigheden: Centrum van Guardamar 4 km Strand van Moncayo 5 km Ciudad Quesada 5 km Torrevieja en winkelcentrum Habaneras 8 km La Marquesa Golf 6 km La Finca Golf 12 km Vistabella Golf 18 km Luchthaven Alicante 30 km Luchthaven Murcia Corvera 75 km Uw ideale woning of investering aan de Costa Blanca Of u nu op zoek bent naar een permanente woning, een vakantiehuis of een slimme investeringsmogelijkheid, deze volledig gemeubileerde appartementen in Guardamar del Segura bieden uitzonderlijke waarde op een toplocatie aan de kust. Neem vandaag nog contact met ons op voor meer informatie of om een bezichtiging te regelen en uw nieuwe woning aan de Costa Blanca veilig te stellen.

Locatie

Financieel

Aan deze informatie kunnen geen rechten worden ontleend

Bereken hypotheek

Wisselkantoor

  • Britse pond: 274.579 GBP
  • Russische roebel: 274.579 RUB
  • Zwitserse frank: 290.777 CHF
  • Chinese yuan: 2.535.215 CNY
  • Dollar: 371.606 USD
  • Zweedse kroon: 3.402.945 SEK
  • De Noorse kroon: 3.470.355 NOK
315.000€

Vraag meer informatie

Responsable del tratamiento: BELLA HOUSE DEVELOPMENTS, S.L., Finalidad del tratamiento: Gestión y control de los servicios ofrecidos a través de la página Web de Servicios inmobiliarios, Envío de información a traves de newsletter y otros, Legitimación: Por consentimiento, Destinatarios: No se cederan los datos, salvo para elaborar contabilidad, Derechos de las personas interesadas: Acceder, rectificar y suprimir los datos, solicitar la portabilidad de los mismos, oponerse altratamiento y solicitar la limitación de éste, Procedencia de los datos: El Propio interesado, Información Adicional: Puede consultarse la información adicional y detallada sobre protección de datos Aquí.
Energieniveau
Energieniveau:

B


Bellahouse

Vergelijkbare woningen

WhatsApp