+34 684 46 86 76

Villa · Obra Nueva Alicante · Jávea Xàbia · Valle del Sol

468m2 <1.000m2 4 4
  • 468m2
  • <1.000m2
  • 4
  • 4

Características Clave

Habitaciones: 4
Baños: 4
Construidos: 468m2
Parcela: 1.000m2
Calificación energética: B

Características

Storage / Trastero
Toilet: 1
Jardín
Piscina privada
Gated
Near Schools
Near Commercial Center
Location: Coastal, Urbanisation
Beach: 3000 Meters
Under-Build / Basement
Double Bedrooms: 4
Number of Parking Spaces: 2
Parking - Space
Patio
Laundry Room
Useable Build Space: 270 Msq.
Terrace: 124 Msq.

Descripción

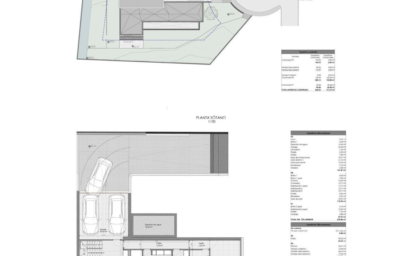
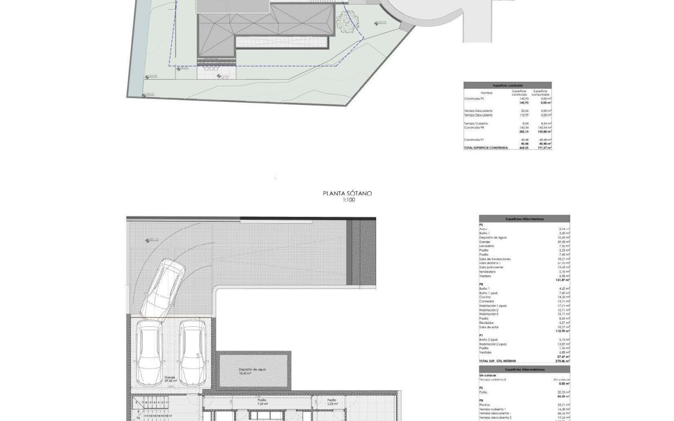
Villa moderna de nueva construcción con características de lujo en Jávea Vida mediterránea contemporánea en la Costa Blanca Esta impresionante villa independiente de nueva construcción en Jávea combina acabados de alta calidad, un diseño elegante y una funcionalidad óptima en tres amplias plantas. Situada en una de las localidades costeras más codiciadas de la Costa Blanca Norte, la propiedad ofrece un entorno residencial tranquilo rodeado de verdes montañas, parques naturales y hermosas playas. Jávea es famosa por sus aguas cristalinas, su gastronomía tradicional y su estilo de vida mediterráneo, lo que la convierte en un lugar ideal tanto para vivir como para invertir. Amplio sótano diseñado para la versatilidad La planta sótano está cuidadosamente diseñada para satisfacer las necesidades del estilo de vida moderno. Incluye un garaje abierto para dos coches, un cuarto de baño, un aseo de invitados, una sala de concepto abierto, una sala polivalente y un patio que aporta luz natural al espacio. Esta planta ofrece infinitas posibilidades, ya sea para un gimnasio, una sala de entretenimiento, una oficina o una suite para invitados. Elegante planta baja con espacios de estar conectados La planta baja cuenta con un luminoso salón-comedor que se integra a la perfección con la cocina totalmente equipada, creando un espacio perfecto para las reuniones familiares. El vestíbulo de entrada, el aseo de invitados y los pasillos añaden practicidad y fluidez. Esta planta incluye dos cómodos dormitorios que comparten un moderno cuarto de baño y un amplio dormitorio principal con cuarto de baño en suite, que ofrece privacidad y comodidad. Lujosa suite principal en la planta superior La planta superior está dedicada a un segundo dormitorio principal, que ofrece un refugio exclusivo con su propio cuarto de baño en suite, vestidor y pasillo. Este espacio privado garantiza comodidad y tranquilidad con hermosas vistas de los verdes paisajes circundantes. Vida al aire libre diseñada para el clima mediterráneo Las zonas exteriores de la propiedad están pensadas para disfrutar de la vida al aire libre durante todo el año. Cuenta con dos terrazas cubiertas y dos terrazas descubiertas en la planta baja. Una de las terrazas cubiertas rodea la piscina, perfecta para relajarse en verano, mientras que la terraza descubierta junto a la cocina es ideal para comer al aire libre y celebrar reuniones. Equipada con calefacción por suelo radiante y aire acondicionado por conductos, la villa garantiza el confort en todas las estaciones. Ubicación privilegiada en Jávea Playa del Arenal a 3 km Puerto y marina de Jávea a 7 km Club de golf de Jávea a 3 km Aeropuerto de Alicante a 100 km Aeropuerto de Valencia a 125 km Su hogar mediterráneo le espera Tanto si busca una residencia de lujo, una casa de vacaciones o una inversión segura a largo plazo, esta villa le ofrece un estilo de vida excepcional en Jávea. Póngase en contacto con nosotros hoy mismo para concertar una visita y descubrir su futuro hogar en la Costa Blanca.

Localización

Financiación

Esta información que se proporciona aquí está sujeta a errores y no forma parte de ningún contrato. La oferta se puede cambiar o retirar sin previo aviso. Los precios no incluyen los costes de compra

Calcular hipoteca

Cambio de divisas

  • Libras: 1.917.696 GBP
  • Rublo Ruso: 1.917.696 RUB
  • Franco Suizo: 2.030.820 CHF
  • Yuan Chino: 17.706.260 CNY
  • Dolar: 2.595.340 USD
  • Corona Sueca: 23.766.600 SEK
  • Corona Noruega: 24.237.400 NOK
2.200.000€

Solicitar información

Responsable del tratamiento: BELLA HOUSE DEVELOPMENTS, S.L., Finalidad del tratamiento: Gestión y control de los servicios ofrecidos a través de la página Web de Servicios inmobiliarios, Envío de información a traves de newsletter y otros, Legitimación: Por consentimiento, Destinatarios: No se cederan los datos, salvo para elaborar contabilidad, Derechos de las personas interesadas: Acceder, rectificar y suprimir los datos, solicitar la portabilidad de los mismos, oponerse altratamiento y solicitar la limitación de éste, Procedencia de los datos: El Propio interesado, Información Adicional: Puede consultarse la información adicional y detallada sobre protección de datos Aquí.
Calificación energética
Calificación energética:

B


Bellahouse

Propiedades similares

WhatsApp